




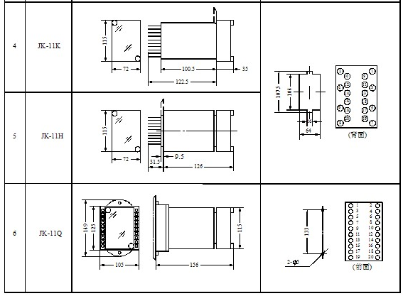
继电器采用JK-11K、H、Q型壳体,其外形尺寸及、背后端子及安装开孔图见附录3.
背后端子接线图.见图1
继电器外壳为黑色胶木,盖子为透明有机玻璃,可以清楚地观察到继电器的整定位置和发光二极管亮或灭,指示继电器动作与返回。取下有机玻璃盖,调节电位器旋钮可以方便地改变延时整定值,拔出机芯可方便地进行维修。继电器由降压回路、稳压回路、振荡器、计数器和出口回路等几部分组成。采用微功耗的CMOS集成电路,内具有14级串行进位二进制计数器/分频器,其时钟输入端带有可供使用的串接反相器,通过外接电阻和电容构成RC振荡器,产生所要求振荡频率。当计数输入端出现时钟脉冲时,计数器开始计数(下降沿计数),因而其各输出端可以按不同的分频数达到不同的延时要求。本CMOS集成电路带有复位端“R”,当接通电源时,“R”端施加“1”电平, 这时计数器输出全部清“0”。输出端Q4~Q10及Q12~Q14用来供继电器延时范围的选择,无需改变继电器内部元件参数达到各种规格的要求。计数器输出信号通过三极管放大推动执行继电器出口.

原理图见图2

1.额定电压:直流220、110、48V.
2.延时整定范围,见表.

3.触点形式:一转换。
4.动作值及返回值
对于额定电压为220V,110V的继电器,其动作值不大于额定值的70%;对于额定电压为48V的继电器,其动作值为不大于90%额定值。
继电器返回值不小于额定值的5%。
5.延时一致性
在基准条件下,施加额定电压,继电器的延时一致性不大于1%。
其含义是指在任一整定点上五次测得的实际动作值中较大值与较小值之差与五次算术平均值
之比。
6.延时整定值的平均误差
在基准条件下,施加额定电压,继电器的延时整定值的平均误差不大于±5%。
其含义是指在同一整定点上五次测得的算术平均值和整定值之差与整定值之比。
7.温度影响
温度在标称范围内变化时,继电器延时整定值的变差不应超过4款和5款规定值的两倍。
8.电压影响
输入电压在工作范围内变化时,继电器延时整定值的变差不超过4款和5款规定值的两倍。
9.功率消耗在额定电压下,继电器的功率消耗符合表2的规定值.
