乐玩lewin国际

上海乐玩lewin国际电力

继电器制造商
lewin乐玩·(中国区)有限公司官网

咨询服务热线139-6888-3630
继电器选型
乐玩lewin国际> 技术文章>过流继电器

联系乐玩lewin国际

  • GL-11电磁式过流继电器
  • 文章类别:过流继电器
  • 文章概述
  • 产品分类

    询价留言

    产品用途
    GL-11反时限过流继电器(以下简称继电器)具有反时限特性,应用于电机、变压器等主设备以及输配电系统的继电保护回路中。当主设备或输配电系统出现过负荷及短路故障时,该继电器能按预定的时限可靠动作或发出信号,切除故障部分,保证主设备及输配电系统安全。
    产品接线图
    GL-11反时限过流继电器接线图
    产品工作原理
    继电器的工作原理是复合式的,由公用一个线圈的感应式和电磁式的两个元件组成。当继电器的线圈通以交流电流时,则在铁芯的遮蔽与未遮蔽部分产生两个具有一定相位差的磁通。此磁通与其在圆盘中感应的涡流相互作用,在圆盘上产生一转矩。在20%~40%的动作电流整定值下,圆盘开始旋转。此时由于扇齿与蜗杆没有咬合,故继电器不动作。


    当线圈中的电流增大至整定电流时,电磁力矩大于弹簧的反作用力矩框架转动,使扇齿与蜗杆咬合,扇齿上升。此时继电器的动铁在扇齿顶杆的推动下,使导磁铁右边气隙减少,左边气隙增大,因而动铁被导磁铁吸合,使继电器触点动作。


    当继电器线圈中的电流为整定值时,感应元件的动作时限与电流的平方成反比。随着电流的增加,导磁体饱和,动作时限逐渐趋于定值。当线圈中的电流大到某一电流倍数时,电磁元件瞬时动作,因而继电器的动作时限具有有限反延时的特性。


    继电器具有若干抽头,用以调整感应元件与电磁元件的动作电流。另外用倍流螺钉改变动铁与电磁铁之间的气隙来调整电磁元件动作电流。继电器具有调整感应元件动作时间整定值的机构及主触点动作的信号牌。用手旋转返回机构,可使信号牌返回,并不需取下外壳。

    额定电流与整定范围
    GL-11反时限过流继电器额定电流与整定范围
    延时特性曲线图
    GL-11反时限过流继电器延时特性曲线图
    主要技术参数

    1、继电器线圈的长期允许电流为110%额定电流。

    2、继电器的返回系数,对于GL-11、12、21、22型应不小于0.85,对于GL-13、14、15、16、17、23、24、25、26型应不小于0.8。

    3、当电流为继电器的整定电流时,继电器的功率消耗不大于15VA。

    4、热性能要求
    当环境温度为40℃时,继电器线圈长期承受110%额定电流,其允许温升不超过65℃。

    5、绝缘电阻不小于300MΩ。

    6、介质强度
    继电器所有电路对外壳和非带电的金属部分,以及在电气上无联系的各电路之间的应能承受2kV(有效值)50Hz交流试验电压,历时1min,无绝缘击穿或闪络现象。

    7、寿命
    GL-11~14、21~24型继电器机械寿命为5000次,电寿命为500次;
    GL-15、16、17、25、26型继电器机械寿命为500次,电寿命为50次。

    8、重量约为4kg。

    调试方法

    1、主触点间隙不小于2mm。为了防止触点抖动,动触点对于动合触点在动作前,对于动断触点在动作后,应与限制器接触。

    2、信号触点间隙不小于1.5mm。当信号触点刚刚闭合时,扇齿与蜗杆咬合应不少于2个齿。

    3、框架与转盘的轴向活动量为0.1~0.2mm。继电器在工作位置及倒置180ο的位置上,转盘不应与磁铁及导磁体的极面相碰。

    4、扇齿与蜗杆的咬合量为扇齿高的1/3~2/3。

    5、旋转倍流螺钉,改变动铁与导磁铁之间的气隙,即可调整瞬动电流。

    6、调整感应片及弹簧,使动作电流返回电流与技术要求相同。

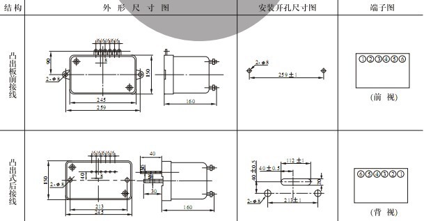
    安装尺寸
    GL-11反时限过流继电器安装尺寸

    *主题:

    称呼:

    邮箱:

    公司:

    *电话:

    传真:

    备注:

    *验证码: